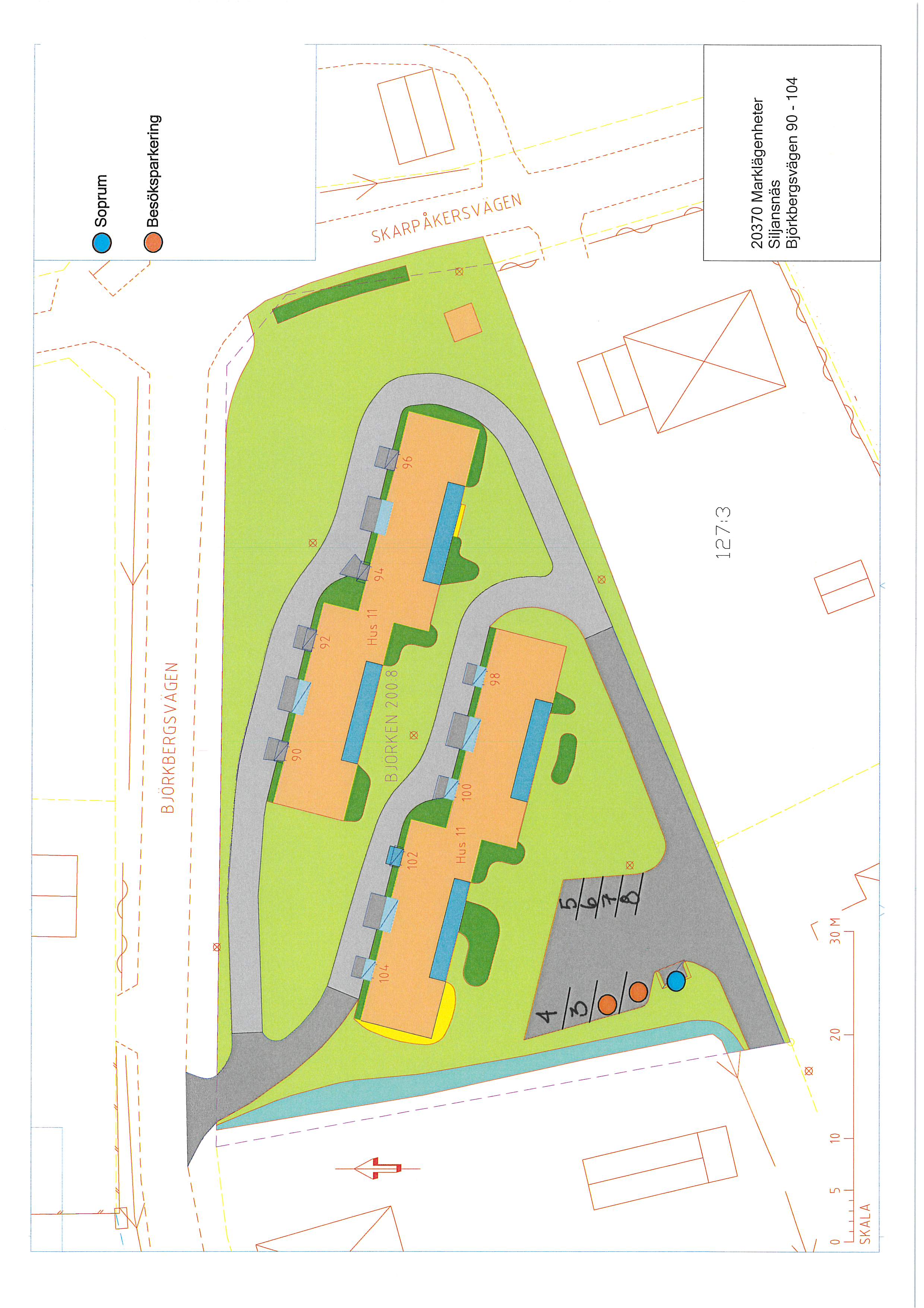
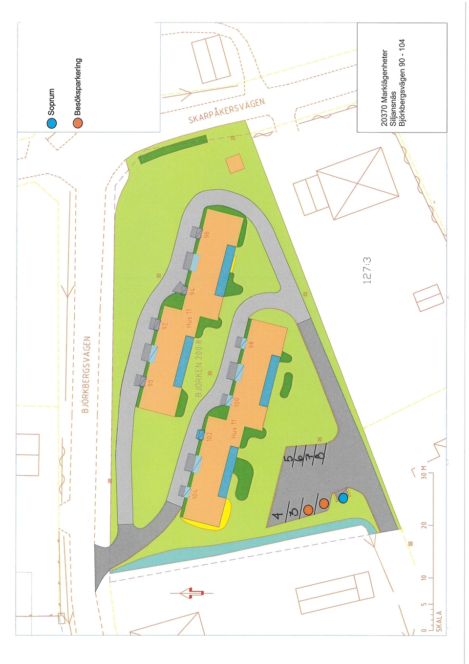
Björken 200:2 Källvadsvägen 18-36