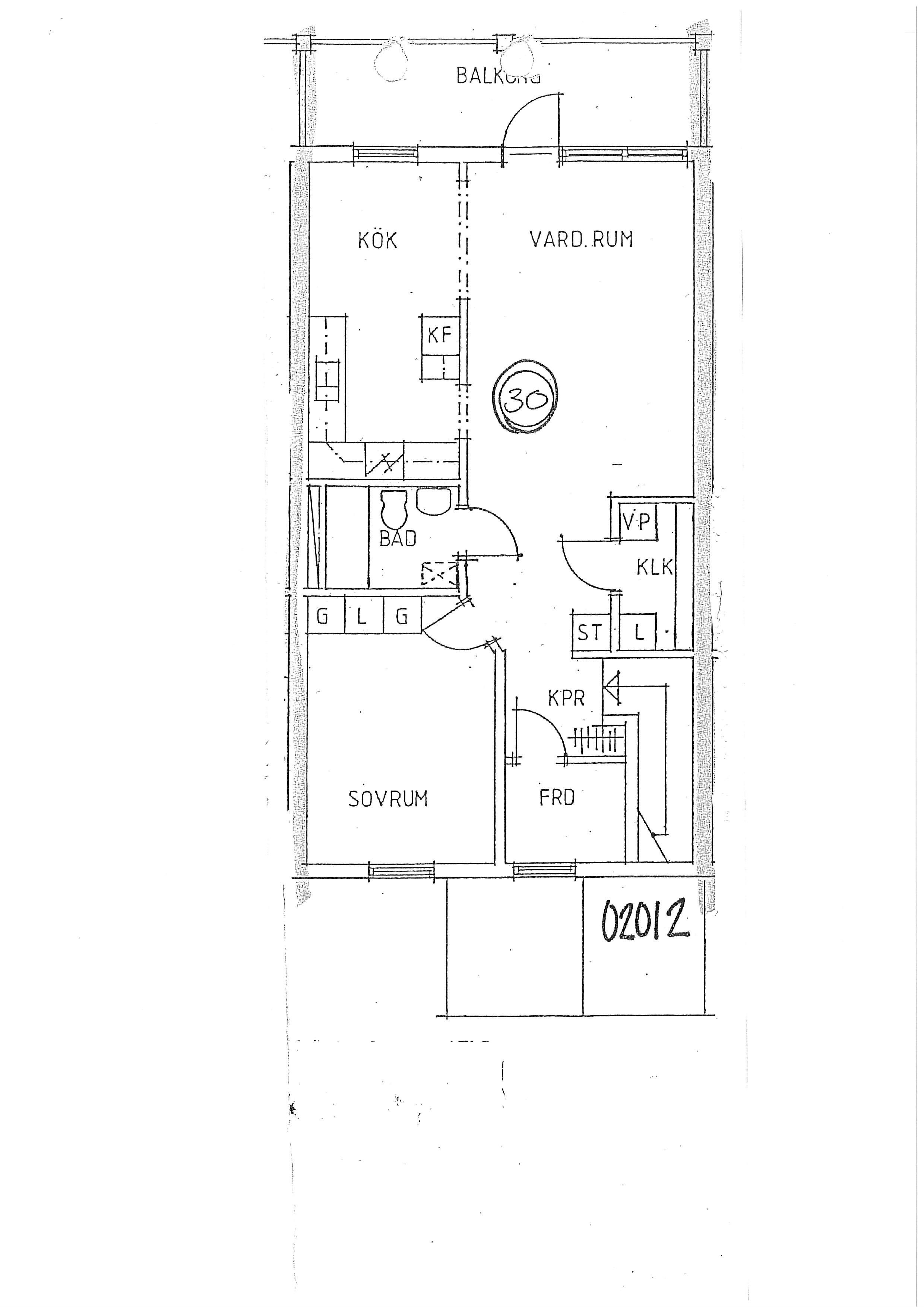
Kornvägen 30