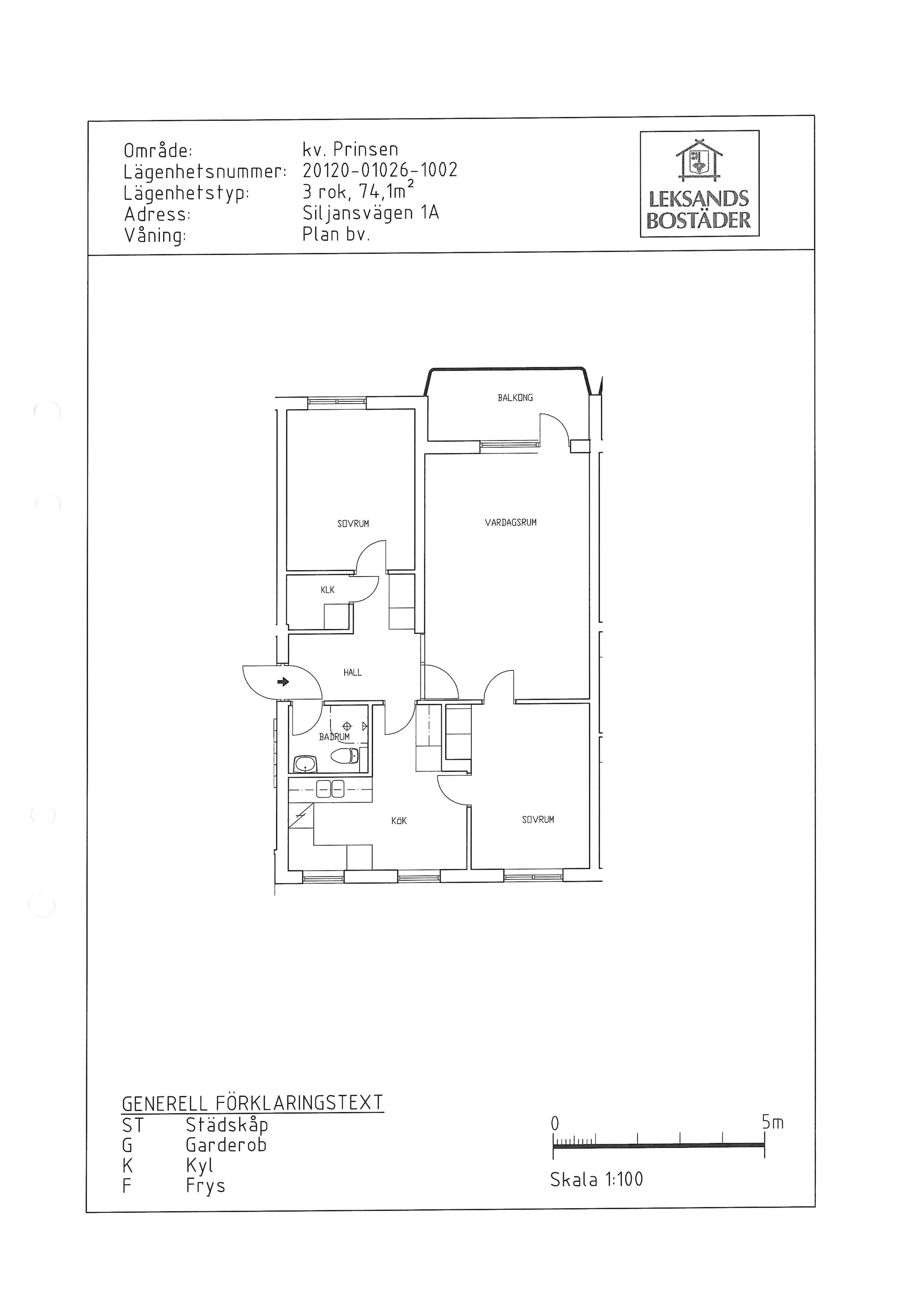
Siljansvägen 1 A